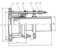
VSSJA-1型單法蘭限位伸縮接頭是泵、閥門等設備與管道連接的新產品,通過全螺栓把它們連接起來,使其成為一個整體,并有一定的位移量,這樣就可以在安裝維修時,根據現場安裝尺寸進行調整,在工作時,可以把軸向推力傳還至整個管道。這樣不僅提高工作效率,而且針對泵、閥門等設備起到一定保護作用。 法蘭限位伸縮接頭是在AF型法蘭松套補償接頭的基礎上增設限位螺柱而成,最大伸縮量處用雙螺母鎖定,補償因熱脹冷縮和地基沉降引起的管線軸向位移及撓曲和偏心,從而保護閥門的設備。根據連接方式的不同分為單法蘭限位伸縮接頭和雙法蘭限位伸縮接頭。 單法蘭限位伸縮接頭應用范圍 VSSJA-1型單法蘭限位伸縮接頭產品適用于輸送海水、淡水、冷熱水、飲用水、生活污水、原油、燃油、潤滑油、成品油、空氣、煤氣、溫度不高于250度的蒸汽和顆粒粉狀等介質。 單法蘭限位伸縮接頭安裝說明: 單法蘭限位伸縮接頭功能介紹 單法蘭式限位伸縮接頭,型號VSSJA-1或BF型,單法蘭限位伸縮接頭是由松套伸縮接頭和一個限位短管組合而成。VSSJA-1單法蘭限位伸縮接頭能防止管道因超量位移導致補償接頭的泄漏或損壞,主要用于在允許位移范圍內吸收軸向位移和承受軸向壓力推力的管道松套連接。 單法蘭限位伸縮接頭優點:安裝方便快捷、密封可靠、維修方便。 單法蘭限位伸縮接頭特點:實現了管道一邊法蘭連接,一邊為焊接的不一致性的方便連接

VSSJA-1型單法蘭限位伸縮接頭材料表
序號 |
名稱 |
數量 |
材料 |
1 |
本體 |
1 |
QT400-15、Q235A、ZG230-450、20 |
2 |
密封圈 |
1 |
NBR |
3 |
壓蓋 |
1 |
QT400-15、Q235A、ZG230-450、20 |
4 |
限位短管法蘭 |
1 |
Q235A、20、16Mn |
5 |
螺母 |
4n |
Q235A、20、1Cr18Ni9Ti |
6 |
長螺柱 |
n |
Q235A、35、1Cr18Ni9Ti |
7 |
螺柱 |
n |
Q235A、35、1Cr18Ni9Ti |
VSSJA-1型單法蘭限位伸縮接頭技術參數
公稱通徑 |
管子外徑 |
外形尺寸 |
伸縮量 |
法蘭連接尺寸 |
Dw |
L |
L1 |
0.6MPa |
1.0MPa |
D |
D1 |
n-d。 |
D |
D1 |
n-d。 |
65 |
76 |
340 |
105 |
50 |
160 |
130 |
4-¢14 |
185 |
145 |
4-¢18 |
80 |
89 |
190 |
150 |
4-¢18 |
200 |
160 |
8-¢18 |
100 |
108 |
210 |
170 |
220 |
180 |
114 |
125 |
133 |
240 |
200 |
8-¢18 |
250 |
210 |
140 |
150 |
159 |
265 |
225 |
285 |
240 |
8-¢22 |
168 |
200 |
219 |
320 |
280 |
340 |
295 |
250 |
273 |
370 |
335 |
12-¢18 |
395 |
350 |
12-¢22 |
300 |
325 |
350 |
130 |
65 |
440 |
395 |
12-¢22 |
445 |
400 |
350 |
377 |
490 |
445 |
505 |
460 |
16-¢22 |
400 |
426 |
540 |
495 |
16-¢22 |
565 |
515 |
16-¢26 |
450 |
480 |
595 |
550 |
615 |
565 |
20-¢26 |
500 |
530 |
645 |
600 |
20-¢22 |
670 |
620 |
600 |
630 |
755 |
705 |
20-¢26 |
780 |
725 |
20-¢30 |
700 |
720 |
860 |
810 |
24-¢26 |
895 |
840 |
24-¢30 |
800 |
820 |
590 |
220 |
130 |
975 |
920 |
24-¢30 |
1015 |
950 |
24-¢33 |
900 |
920 |
1075 |
1020 |
1115 |
1015 |
28-¢33 |
1000 |
1020 |
1175 |
1120 |
28-¢30 |
1230 |
1160 |
28-¢36 |
1200 |
1220 |
1405 |
1340 |
32-¢33 |
1455 |
1380 |
32-¢40 |
1400 |
1420 |
1630 |
1560 |
36-¢36 |
1675 |
1590 |
36-¢42 |
1500 |
1520 |
1730 |
1660 |
- |
- |
- |
1600 |
1620 |
1830 |
1760 |
40-¢36 |
1915 |
1820 |
40-¢48 |
1800 |
1820 |
2045 |
1970 |
44-¢40 |
2115 |
2020 |
44-¢48 |
2000 |
2020 |
2265 |
2180 |
48-¢42 |
2325 |
2230 |
48-¢48 |
2200 |
2220 |
2475 |
2390 |
52-¢42 |
2550 |
2440 |
52-¢56 |
2400 |
2420 |
2685 |
2600 |
56-¢42 |
2760 |
2650 |
56-¢56 |
2600 |
2620 |
600 |
240 |
150 |
2905 |
2810 |
60-¢48 |
2960 |
2850 |
60-¢56 |
安裝簡要說明:VSSJA-1型法蘭式限位伸縮接頭適用于一邊與法蘭連接,一邊與管道焊接,安裝時調整產品兩端與管道或法蘭的安裝長度,對角依次均勻擰緊壓蓋螺栓,再調整好限位螺母,這樣就能讓管道在伸縮量范圍內可以自由伸縮,鎖定伸縮量,確保管道的安全運行。 | |